
WebORDEM DE SERVIÇO - NR 1. Introdução - Este documento tem o intuito de levar, aos.
Coleção Rommanel Simone E Simaria, Rommanel Coleção Fé | Por Simone e Simaria, 1.4 MB, 01:01, 8,066, Rommanel, 2021-12-02T18:08:01.000000Z, 9, Rommanel lança nova coleção com Simone & Simaria, micheltelles.faroldabahia.com, 2000 x 1333, jpeg, , 20, colecao-rommanel-simone-e-simaria, New Topics
WebAnexo I da NR-1 Termos e definições Ordem de serviço de segurança e saúde no. WebOrdem de serviço de segurança e saúde no trabalho: instruções por escrito quanto às. WebEsta Ordem de serviço referida na NR01 difere das OS realizadas diariamente para. WebMedidas Preventivas e de Proteção aos Riscos (Ordem de Serviços – NR 01); Uso. WebNR 01 ORDEM DE SERVIÇO. NR 01 ORDEM DE SERVIÇO. NR 01 ORDEM DE. WebAqui você vai descobrir tudo sobre a Ordem de Serviço (OS) em conformidade com a NR. WebO que é uma Ordem de Serviço? Como já dito, a Ordem de serviço é um documento. WebNR-4; GOV.BR. Serviços. Buscar serviços por. Categorias; Órgãos; Estados; Serviços.
Assista Ordem de Serviço NR-1 - Tudo que você precisa saber tendência
Novo ORDEM DE SERVIÇO NR 1: PASSO A PASSO COMPLETO popular
Sobre NOVA NR 1 - ORDEM DE SERVIÇO
Sobre A OS (Ordem de Serviço) foi modificada na nova revisão da NR 01
Aqui OS ordem de serviços NR 1 se tornando viral
Tutorial da NR01 - Ordem de Serviço popular
ORDEM DE SERVIÇO NR 01 atualizado
Último Ordem de Servico na nova NR 01 viral
ORDEM DE SERVIÇO NA SEGURANÇA DO TRABALHO NR1 tendência
Outras descrições de Ordem De Serviço Nr 1 do vídeo anterior
Um vídeo definitivo para elaboração de Ordens de Serviço INCLUSIVE para profissionais que não são da área de SST.
Profissionais de RH e DP, por exemplo, muitas vezes se deparam com a necessidade de elaborar uma Ordem de Serviço devido à ausência de SESMT na empresa. Vamos juntos?
O ideal é que uma Ordem de Serviço (também chamada de OS) seja o primeiro contato entre a segurança do trabalho e um novo colaborador. É a porta para iniciar um relacionamento entre as duas partes, de modo a resguardar direitos e deveres de empregado e empregador.
Antes de mais nada é bom esclarecer sobre o tipo de OS que vamos abordar aqui. Isso porque existem OSs emitidas diariamente que são referentes ao trabalho a ser realizada NAQUELE DIA.
Por exemplo: uma empresa que atua como um provedor de internet. Diariamente existem técnicos que vão às ruas para realizar vários serviços e para cada um deles há uma OS, constando o endereço do cliente (ou da localidade do serviço), qual o tipo de serviço (instalação, manutenção ou algum outro inerente à função) dentre outras informações específicas sobre seus trabalhos NAQUELE DIA.
Essas Ordens de Serviço são diárias e variam de acordo com o tipo de trabalho a ser realizado, indicando tecnicamente qual serviço será executado. É uma OS técnica referente à execução de serviço.
A Ordem de Serviço que vamos abordar refere-se à função do colaborador e de todas as atividades que ele vai realizar dentro da empresa. Diferentemente da anterior, esta OS o trabalhador não recebe todos os dias. Ele recebe uma vez com abordagem voltada à segurança do trabalho diante de todas as atividades que ele está apto a executar na empresa.
Caso haja alguma alteração em suas atividades, metodologia de trabalho ou qualquer variável que interfira em sua segurança, a OS deve ser entregue novamente.
Saiba mais assistindo ao vídeo
#NR01
#OrdemServiço
#SSTOnline
sstonline.com.br/
Visualizar O.S Ordem de Serviço - NR1 viral

Imagens O.S Ordem de Serviço - NR1 Último

Sobre ORDEM DE SERVIÇO NR-01 ELETRICISTA 2011 | Eletricista | Engenharia Elétrica
Último Ordem de Serviço - NR 01 - Modelo | PDF | Ciências da Saúde | Segurança
(DOC) NR 01 ORDEM DE SERVIÇO | Diego Reis - Academia.edu mais

Ordem de Serviço para Trabalho em Altura | PDF tendência
(DOC) Ordem de Serviço para Mecanico Montador | Mario Silva - Academia.edu Último

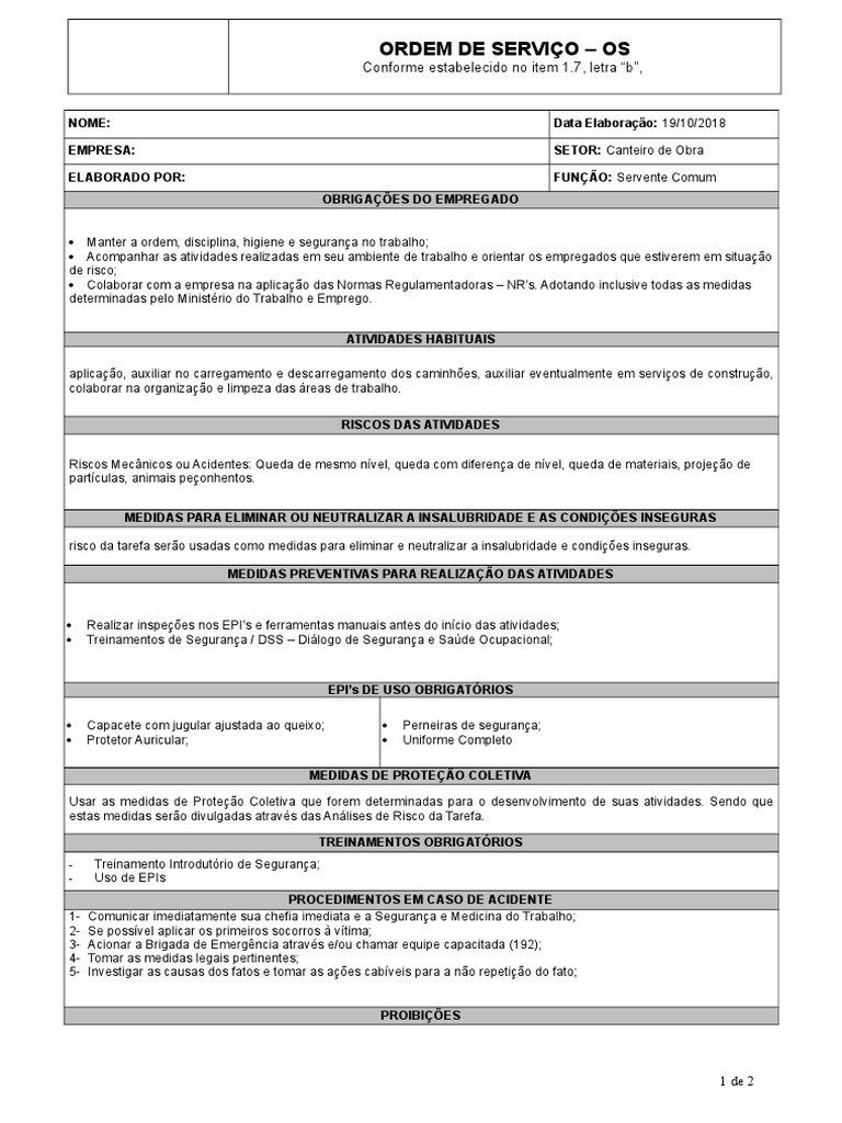
Atualmente - Ordem de Serviço - Servente Comun | PDF | Lei Trabalhista | Trabalho
Atualmente - Modelo de Ordem de Serviço NR 01 - Viver de Segurança do Trabalho Novo

Visualizar Nr1 Último

O.s para padeiros viral











0 Komentar